Porzione di casa Picciano

Porzione di casa, Picciano(Pescara)

€ 40.000

Rif.: 111
Descrizione

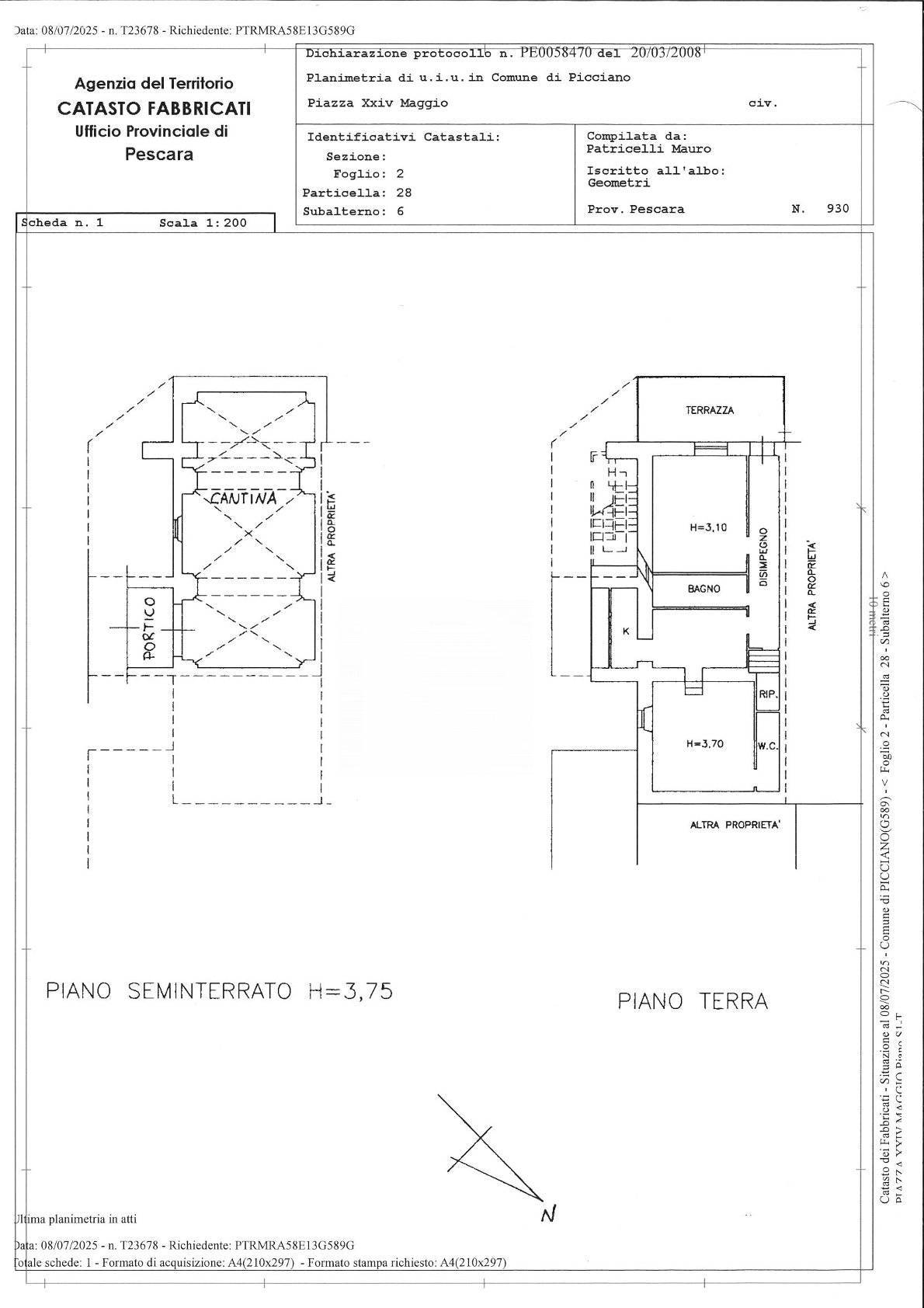
Piccianello --Nella storica piazza principale proponiamo porzione di immobile indipendente composto da ingresso, corridoio sala da pranzo, bagno, cucina con angolo cottura e piccolo balcone, camera da letto con bagno interno, ripostiglio e terrazza recintata; completa la proprietà un 'ampia cantina /magazzino con ingresso autonomo.
L'immobile gode di un'ottima esposizione con vista aperta ed in contesto tranquillo .
A pochi kilometri il versante costiero e la catena montuosa abruzzese per gli amanti della natura . Tutti i servizi sono a pochi minuti di auto e la soluzione è ideale sia per un uso proprio che per uso ricettivo visto l'enorme sviluppo che si è avuto in questi periodi . La cantina presenta rifiniture storiche sprigionando tutti gli aspetti più emozionanti .
Ottima opportunità .

Caratteristiche specifiche
Piani:
2
Superficie:
98 m2
Locali:
3
Camere:
1
Bagni:
2
Esposizione:
sud/est
Classe Energetica:
Posizione
Richiedi informazioni.
Contatti

T: +39 085 2056664
E: segreteria@enzodalessandro.com

Scroll