Porzione di casa Loreto Aprutino

Porzione di casa, Loreto Aprutino(Pescara)

€ 182.000

Rif.: 112
Descrizione

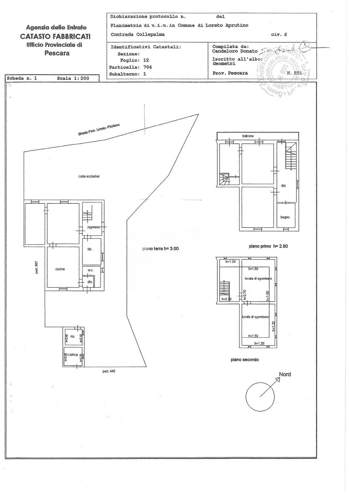
Complesso con abitazione, frantoio e terreno – Opportunità imprenditoriale a Loreto Aprutino (Contrada Collepalma)Nel suggestivo scenario collinare di Loreto Aprutino, in posizione panoramica e riservata a soli 3 km dal centro storico, proponiamo in vendita una proprietà dal forte potenziale imprenditoriale composta da:

  • Porzione abitativa su tre livelli
  • Strutture produttive
  • Ampia area esterna di circa 3.000 mq

Parte ResidenzialeL'abitazione si sviluppa su tre livelli:
  • Piano terra e primo piano ad uso residenziale
  • Secondo piano adibito a locale di sgombero
La possibilità di vivere direttamente sul luogo dell'attività rappresenta un importante valore aggiunto per chi desidera coniugare vita privata e progetto professionale.

Strutture ProduttiveStoricamente utilizzata come azienda olearia, la proprietà dispone di spazi già strutturati per attività artigianali, agricole o di trasformazione:
  • Stanzino di circa 10 mq
  • Frantoio di circa 135 mq
  • Magazzino di circa 80 mq
Gli ambienti si prestano anche a riconversioni funzionali (laboratori, deposito, attività ricettiva rurale, showroom agroalimentare, ecc.).

Area EsternaIl complesso insiste su un terreno di circa 3.000 mq, ideale per:
  • Organizzazione operativa dell'attività
  • Eventuali ampliamenti
  • Parcheggi o aree di manovra
  • Progetti agricoli o turistico-ricettivi

PosizioneImmersa nella campagna abruzzese ma facilmente collegata al centro di Loreto Aprutino, la proprietà gode di un contesto autentico, tranquillo e strategico, in un territorio rinomato per la produzione olearia e vitivinicola.

Opportunità di InvestimentoAttualmente l'immobile è locato, configurandosi anche come investimento a reddito.

Perché scegliere questa proprietà?✔ Spazi già predisposti per attività produttive
✔ Presenza di abitazione annessa
✔ Ampia area esterna
✔ Contesto naturale e riservato
✔ Potenziale imprenditoriale concreto
Una soluzione ideale per chi desidera realizzare un progetto in Abruzzo che unisca impresa, territorio e qualità della vita.

Caratteristiche specifiche
Piani:
3
Superficie:
250 m2
Locali:
5
Camere:
3
Bagni:
2
Esposizione:
nord/ovest/est
Classe Energetica:
G - 240.73 kwh/㎡
Posizione
Richiedi informazioni.
Contatti

T: +39 085 2056664
E: segreteria@enzodalessandro.com

Scroll