Casa singola Loreto Aprutino

Casa singola, Loreto Aprutino(Pescara)

€ 98.000

Rif.: 116
Descrizione

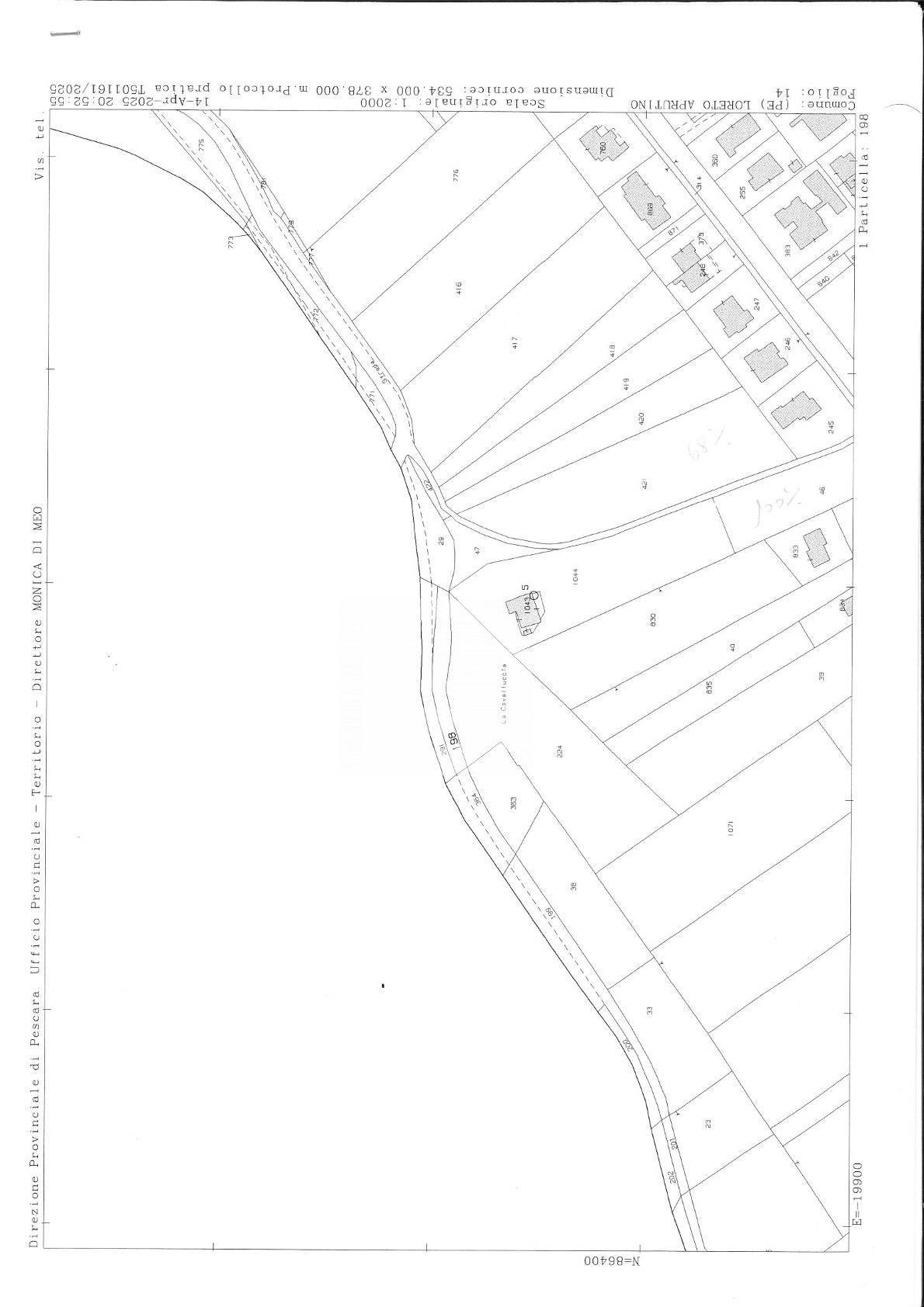
LORETO APRUTINO (PE) - in prossimità della Contrada Remartello, proponiamo casa singola con ampio terreno circostante di circa 1,7 ettari e di cui in parte edificabile.
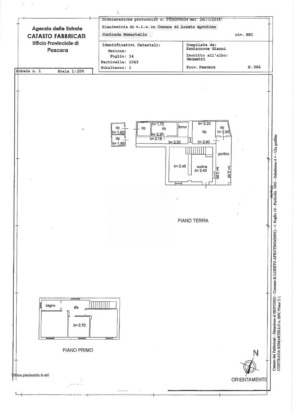
La soluzione proposta si sviluppa su 2 livelli con la zona giorno al piani terra oltre che vari locali deposito e ripostigli ed un piano primo con tre camere ed un bagno oltre disimpegno.
Nell'ambito dell'intera proprietà in unico lotto, troviamo anche un locale rimessa ed un locale con destinazione legnaia ed ampio terreno circostante .
La soluzione proposta è ideale per coloro che amano realizzare il sogno di un 'immobile completamente autonomo che rappresenta le rifiniture dell'epoca e, quindi , adatto a personalizzarlo con caratteristiche tali da rispecchiare la propria immagine sia dal punto di vista di rifiniture che dal punto di vista impiantistico per sfruttare tutte le novità energetiche. Ciò permette di realizzare un'unità abitativa unica nel suo genere per vivere in ambiente rinnovato e che rispetta l'ambiente con uno standard di vita che solo questa soluzione può offrire .
L'immobile è ubicato in una zona servita con tutti i principali negozi ed anche ottimamente servita dai mezzi pubblici per raggiungere sia l'interno della regione che il lato costiero con tutte le sue spiagge attrezzate; infatti a pochi minuti di auto le città di Montesilvano e Pescara che rappresentano il cuore commerciale dell'intero Abruzzo. Il territorio in cui ci troviamo è pianeggiante e vicino a strade comode che garantiscono una facile ristrutturazione per rendere reali le proprie emozioni che solo la casa in cui si vive può offrire .
Una parte del terreno è edificabile con possibilità conseguenziale di realizzare altre strutture .
Chiamaci per ulteriori dettagli .

Caratteristiche specifiche
Piani:
2
Superficie:
155 m2
Locali:
5
Camere:
3
Bagni:
1
Esposizione:
nord/sud/ovest/est
Classe Energetica:
Posizione
Richiedi informazioni.
Contatti

T: +39 085 2056664
E: segreteria@enzodalessandro.com

Scroll