Appartamento Pescara

Appartamento, Pescara

€ 150.000

Rif.: 093
Descrizione

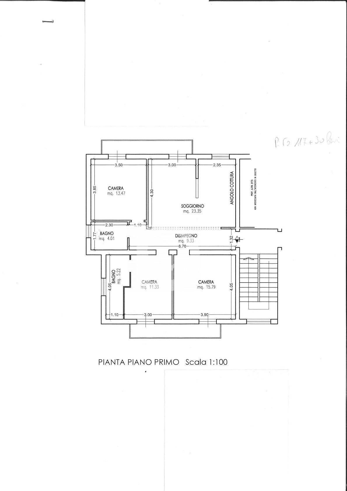
PESCARA - In zona Porta Nuova Via San Donato, proponiamo ampio appartamento composto da ingresso, soggiorno con angolo cottura a vista , disimpegno , tre ampie camere di cui una con bagno interno, bagno , due balconi a livello e garage al piano terra. L'unità proposta è stata oggetto di recente ristrutturazione e si trova all'interno di una piccola palazzina . Circondata da tutti i principali servizi, è ben collegata all'intera città grazie ai mezzi pubblici . Nelle immediate vicinanze anche la Stazione Ferroviaria di Porta Nuova per raggiungere ogni meta . A pochi minuti a piedi , il polo giuridico ed universitario della città di Pescara che rende l'appartamento idoneo sia per uso personale e sia per uso investimento con possibilità di locare a studenti dell'Università di cui prima.

Caratteristiche specifiche
Piani:
2
Superficie:
103 m2
Locali:
5
Camere:
3
Bagni:
2
Esposizione:
nord/ovest/est
Classe Energetica:
G - 234.30 kwh/㎡
Posizione
Richiedi informazioni.
Contatti

T: +39 085 2056664
E: segreteria@enzodalessandro.com

Scroll